
51㎡温馨的水泥房子,一改粗糙的工业感,原来有质感的家居,还能这么设计。(来源:内小宅)

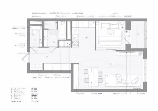
51㎡平面布局图。BarinovAndrey,一枚来自俄罗斯的家装设计师。一改水泥房子的粗糙质地,将家还原成一个温馨的小屋。吊顶的水泥墙全都保留,连电线都选择裸露的方式。

L型的房屋设计,两个卫生间与储藏室都放在过道走廊的两边。玄关入口处的置物柜,还保留了座位以及鞋柜的设计。

占据一部分走道的面积,利用滑轮式移动门将其隔断,做成了家中的储物间。

将洗衣房外移,利用隔板,形成分类储物的方式。最下层是洗衣机与需换洗的脏衣服。中间一层是用来放置干净的衣服,甚至连熨晾的地方,都考虑细致。

彻底干湿分离的卫生间将马桶间,用单独一间房子隔离出来。家中设置两个洗脸区,并在马桶后的背景墙增加了储物吊柜。

两个不同功能的卫生间能同时满足一家人的洗漱需求。一大块玻璃镜子覆盖一大块木隔板,组成了家中第二个洗漱需求。

对称式的彩砖设计,玻璃镜子,放在最中间的位置。沐浴区的玻璃房外放置一个脱鞋的沥水板。

小面积,就得充分利用。靠墙的旮旯空间,都能设计一个大浴缸。

L型的厨房布局,灶台区域放在最边上的位置。锅碗瓢盆全都放在靠柜里。

小家变大就是不断填补剩余的空间。占据厨房剩余的半面墙,并重新组合吊柜顶部的面积。

开放式的餐客空间,一个老木板子,再搭配两个金属架,就形成了用餐区域。

吊顶处的红色线路看似扎眼地很。

将橱柜的边沿用红色的电线包裹,却成了置物柜的最有创意的装饰。

简单搭配的客厅,一个大沙发再搭配一个电视柜。

与餐厅之间也并未使用任何隔断的屏风,从而形成一个新的整体。

封闭式的卧房与厨房仅仅隔着一个白色砖墙。不设置传统的打开门,利用轮滑,重新设计移动门。

将橱柜的边沿用红色的电线包裹,却成了置物柜的最有创意的装饰。

没有床头柜,只用木隔板解决储物需求。

一个被重新设计的水泥房,重新划分后的功能间。

这样的法式浪漫小屋,不知道各位朋友喜欢吗?
房屋虽小,但只要装修的好,再有爱在心间,就算小也一样可以生活得很开心。
什么,装修还用自己的钱?!齐家装修分期,超低年利率3.55%起,最高可贷100万。立即申请享受优惠
