看自己喜欢什么样的,发一下给你参考



你好,乡墅建房陈工为你解答!更多建房知识,欢迎点击头像关注本号。每天更有自建房晒家、别墅自建房图纸分享。
在农村像那些家庭条件稍微好些的就会建三层豪华装修的,经济条件稍微弱点的就像我家这样的建个两层小洋楼也足够了。要是再设计个大露台,简单大气又省钱。我觉得很不错,刚好宅基地面积符合你想要的,这里分享给你!

欧式田园风格的两层别墅,外墙用的是具有很好的仿石效果的真石漆,经久耐用又耐脏,屋顶是四坡屋顶盖的红色琉璃瓦,设计了入户走廊,室内还配置了入户玄关,真正的风水户型。
别墅基本信息:
占地尺寸:11.2mX12.2m;
占地面积:137平方米;
建筑面积:207平方米;
结构类型:砖混结构;
建筑层数:2层;
参考造价:16万左右;

不到20万的主体造价,在农村建一栋这样的别墅还是很完美的。二楼的大露台施工简单,经济实用,也可以当晒台使用,因为是自家建的别墅,所以在房子四周也围了个院子。在这满是杂草的野地周围也多了层安全感。

一层平面设计图:经过入户走廊进门就是入户玄关,往左是客厅,一楼设有两间卧室,一间主卧一间次卧,然后往里是厨房和餐厅。

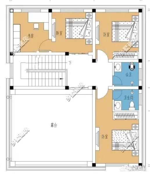
二层平面设计图:二楼设有三间卧室和一间书房,另外就是这个大露台设计了,偶尔的家庭聚会也有用武之地。
简简单单的两层农村小别墅,没有阳台可能是一件比较遗憾的设计,但是这个大露台也刚好弥补了这个缺憾,晾晒衣物也是很方便的。
高典别墅最好

您好,全球轻钢节能抗震房屋专家,专注打造美丽乡村的定荣家为您解答。
不知道您喜欢什么风格的,发几个供您参考哦


墨林阁 127.89平米 一层


花韵小镇 149平 一层



观云悦舍 147平米 二层



远香堂 150.9平米 二层
关注本号,了解更多农村自建房资讯,查看更多农村自建房户型和案例。
您好!专注农村别墅设计及建房技术的美墅住宅为您解答,更多建房知识、省钱技巧,欢迎关注我的头条号。
我们这边就是做农村别墅设计的,如今的农村别墅设计款式风格都比较多样化。每个人的喜欢款式都是不一样的,但是我们在设计的过程中,任何的款式和户型设计,都有了相当充足的经验,也设计了很多的案例。我这边先给您推荐几款比较火的别墅户型设计给您参考下,希望对您有所帮助!










如果需要更多帮助,可以关注一下微信我们的公众号:meishuzhuzhai(长按复制搜索)
