提示:↑↑↑点击“石材研习社”关注
1 整个户型是一栋上下四层的别墅项目,一层公共区、二层主卧与老人房、三层小孩房,地下面积是休闲区。室内设计采用古典欧式风格,设计手法简洁干炼。设计师在空间中细致拿捏着静谧与活跃、朴素与奢华、当代与传统的关系。




欧式古典强调以华丽的装饰、浓烈的色彩、精美的造型达到雍容华贵的装饰效果。欧式客厅顶部采用大型灯池,并用华丽的枝形吊灯营造气氛。地面材料采用大理石,还有浪漫的罗马帘,精美的油画,制作精良的雕塑工艺品,都是点染欧式风格不可缺少的元素。有石商城(www.5ustone.com)










2

贴对联,挂灯笼,以及铺设在入户门阶上的地毯,每一抹中国“红”,都是烙印在我们心中最深的情愫。石材研习社(IDstone5A)


走进室内,堂屋正面的一副奢华山水石雕画镶嵌在墙面之中,形成视觉的聚焦,背景灯光,更是完美的衬托出空间和画面的华丽气场。

山水画背景墙的营造和装饰,能给进入房屋的人一种美的享受,它是房间装饰的重心,是我们房屋的命脉,其背景墙的营造具有旺风水、旺财运的说法,若沙发背景墙面上悬挂一幅大气磅礴山水画寓意有靠山,水为财源,江河长流,财源不断,树热情、旺盛,又有迎客和长寿的意思,因此沙发背景墙挂山水画极为有利,不仅烘托室内高雅的艺术文化氛围,而且彰显主人的品味。


大理石背景墙光润整洁,独特的欧式造型,彰显奢华品味。

施工现场

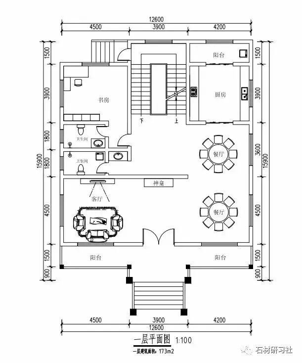
平面布局图




来源:别墅设计与装修
- 推广 -


▲点击图片进入查看
热点推荐↓
↓
↓
↓
迪拜欧式古典豪宅,奢华的最高境界
480m²欧式新古典别墅大理石装饰效果
典雅古朴的新中式风格赏析
文章底部新增留言功能,欢迎踊跃留言评论
投稿.合作.推广 请+微信17134996333

微信ID:stone5A

微信ID:scsc365

微信ID:chinastone8
点击“石材研习社”,进入有石商城!
↓
↓
↓
↓
什么,装修还用自己的钱?!齐家装修分期,超低年利率3.55%起,最高可贷100万。立即申请享受优惠
